New Commercial and Residential Design

Site and floor plans are drawn on-site to scale using cutting-edge laser measuring to ensure maximum accuracy and consistency.

New Commercial Design

Site Plan Surveys

Custom House Plans

Modern House Plans
Multi Family House Design
Modern Farmhouse Plans
Single Story Modern House Plans
Open Concept House Plans
Small House Floor Plans

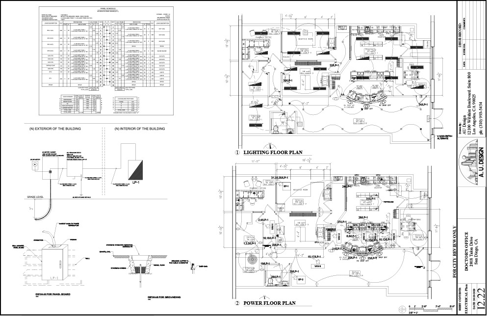
Doctors Office

R

As Built Survey Floor Plan and Site Plans

R

Parking Analysis

R

Occupancy Calculations

R

Custom house Floor Plans

R

ADU Floor Plans

R

Commercial and Residential Building Drafting

R

Structural Engineering Design*

R

Mechanical Plans*

R

Electrical Plans*

R

Plumbing Plans designed by an Engineer*

* Required engineer reports/plans/permits provided by independent engineer consultants.

R

As Built Survey Floor Plan and Site Plans

R

Parking Analysis

R

Occupancy Calculations

R

Custom house Floor Plans

R

ADU Floor Plans

R

Commercial and Residential Building Drafting

R

Structural Engineering Design*

R

Mechanical Plans*

R

Electrical Plans*

R

Plumbing Plans designed by an Engineer*

* Required engineer reports/plans/permits provided by independent engineer consultants.

Get Started!

  • This field is for validation purposes and should be left unchanged.