As-Built point cloud by BLK 360 lasser scanner resalt

AS Built Site Plans Surveys

We provide Site Plans for sidewalks, flower bed curbs, building lines, open patios, fence lines, walkways, sheds, decks, and more. We deliver high-volume As-Built plans through a variety of platforms, including Point Cloud, AutoCAD, REVIT, still pictures and 360-degree photography.

Site Plans SurveyS

We make site plans to provide sidewalks, flower bed curbs, building lines , open patios, fences line, walkways, sheds, decks, any object that is attached on the floor plan and more. We deliver high quality As-Built plans, including

Points cloud, AutoCAD, REVIT, still pictures and 360-degree photography.
We deliver quality services for As Built drawings residential houses and As Builts survey commercial projects.

As-Built Services

✓ Building Outline
✓ Lighting Fixtures
✓ Door
✓ Signage
✓ Canopies
✓ Street Locations and Labels
✓ Mechanical Equipment
✓ Compass with North 
✓ Curbs
✓ Digital Photo Key
✓ Parking Spaces
✓ Landscaping Outline

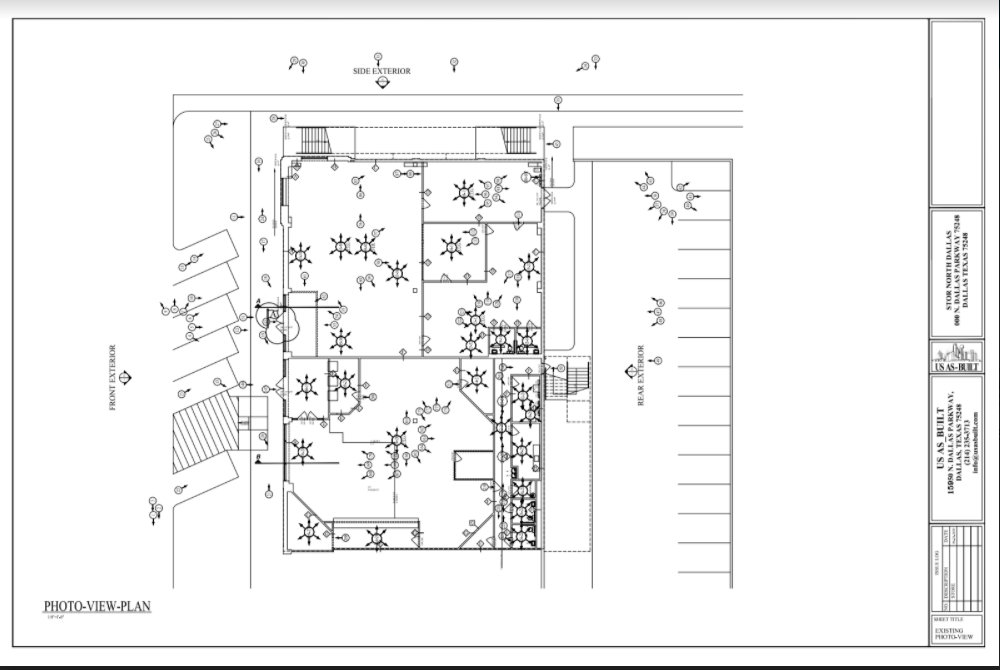
As-Built Site Plan

✓ Exterior and Interior 
✓ Doors and Swings
✓ Doors and Swings
✓ Floor Type and Level Changes
✓ Height Walls
✓ Columns B/Joists
✓ Permanent Fixtures
✓ Electrical Panel
✓ Fire Extinguishers
✓ Alarm Pull Stations
✓ Plumbing Fixtures
✓ Room Labels
✓ Digital Photo Key

As-Built Floor Plan

 Exterior and Interior 
Deck Heights
Columns
Beams
Joists
Sprinkler Lines
Ductwork
HVAC Locations w/ Roof
Digital Photo Key

Reflected Ceiling Plan

As-Built Roof Line

Sections
Curb & Slab Heights
Columns
Doors & Windows
Fixtures, Scuppers & 
Changes in Material
Beams
Joists
Ceiling & Deck Heights
 Roof Level
✓ Parking Spaces
Windows & Glass Panes

DELIVERABLES

FLOOR PLANS

Detailed floor plans showing walls, doors, windows, built-in cabinets, stairs, fixtures and more.

ROOF PLANS

Roof plans showing ridges, valleys, slopes, gutters, chimneys, solar panels, skylights and more.

EXTERIOR ELEVATIONS

Exterior elevations showing facades, doors, windows, downspouts, vents and more.

INTERIOR ELEVATIONS

Interior elevations showing wall surfaces, doors, windows, cabinets, fixtures, shelves and more.

SITE PLANS

Site plans showing building, sheds, decks, patios, fences, walkways, property lines, sidewalks and more.

REFLECTED CEILING PLANS

Reflective ceiling plans showing ceilings, beams, skylights, solatubes, light fixtures, fans and more.

ARCHITECTURAL ELEVATIONS

Architectural elevations showing detailed facade features, trim, reveals, ornaments, materials and more.

STRUCTURAL ELEVATIONS

Structural elevations showing structural elements, materials, beams, posts, columns, connections, and more.

ELECTRICAL PLANS

Electrical plans showing light switches, power receptacles, cable, telephone and more.

MECHANICAL PLANS

Mechanical Plans showing registers, thermostats, furnace, A/C units, heaters and more.
M

CROSS SECTIONS

Cross sections showing sections of walls, floors, ceilings, roof, foundation and more.

BUILDING OUTLINES

Building outlines showing perimeter footprint of the house, building, sheds, barns and more.

STRUCTURAL PLANS

Structural plans showing structural elements like walls, columns, beams, joists, rafters and more.

SITE ELEMENTS

Site elevations showing sheds, playhouses, trellises, canopies, retaining walls and more.

PAPER TO CAD

Drafting services converting hand sketches, redlines, photographs, PDFs to CAD files.

CAD REDRAFTING

Drafting old floor plans and elevation drawings from the Architect or Building Department.

What You Will Get From Us

Commercial As-Built Survey services include:

  • Site Plans
  • Existing Floor Plans
  • Suite Plans
  • Occupancy Calculations
  • Lease Area Analysis
  • Fire Plans
  • Furniture Plans
  • Ceiling Plans
  • Site Condition Inspections
  • Construction Documents for City Permits
  • Existing Building Drawings for Historical Buildings and Sites
  • Existing Elevations

Precision Tools = Accurate Drawings

Based on your needs, we will provide Commercial As-Built Drawings using the latest technology such as sophisticated laser measuring tape, 360 camera, and AutoCAD and Revit tools to ensure the most accurate drawing. Site and floor plans are drawn onsite. Data is provided in any format including CD, DVD, and can be uploaded to an FTP server. If needed, a hard copy can be provided upon request.

We provide the required number of digital photos which are keyed to the floor plan and a survey report with HVAC, electrical, and plumbing information.

Commercial As-Built Surveys are typically used as a basis for design and permitting, site and floor plans are drawn on-site to scale using a variety of laser measuring to ensure accuracy and consistency.